Moonlight Garden là dự án công trình căn nhà cộng đồng cư nay Lavita Charm được Hưng Thịnh triển khai bán sản phẩm vào thời điểm cuối năm 2022. Dự án công trình Moonlight Garden Thủ Đức xuất hiện quy mô 8300m2 với 3 block căn nhà cao 20 tầng với 939 thành phầm trên Ngã 4 Bình Thái, phường Trường Thọ, TP.HCM Thủ Đức, HCM.
TỔNG QUAN DỰ ÁN MOONLIGHT GARDEN THỦ ĐỨC
| Thương hiệu dự án công trình: | Moonlight Garden |
| Vị trí: | Ngã 4 Bình Thái, phường Trường Thọ, TP.HCM Thủ Đức, HCM |
| Nhà dự án: | Hưng Thịnh |
| Đơn vị chức năng xây lắp: | Hưng Thịnh Incons |
| Quy mô: | 8.300m2 |
| Số lock: | 3 Block |
| Số tầng phía trên cao: | 20 tầng nổi & 2 tầng hầm dưới đất |
| Mô hình thành phầm: | Căn nhà – Officetel – Shophouse |
| Tổng số lượng thành phầm: | 939 Thành phầm |
| Diện tích S căn nhà: | 1 – 3 phòng ngủ xuất hiện diện tích S từ 45m² – 85m2 |
| Tiện ích trung tâm: | Khu dã ngoại công viên cây xanh – Đường dạo bước bộ – Trung tâm Thể thao – Trung tâm Thể hình & Spa chăm sóc sức khỏe và làm đẹp – Trung tâm vui chơi trẻ nhỏ – Trung tâm shophouse thương mại phục vụ,… |
| Thời hạn khởi công: | 2022 |
| Thời hạn giao dự kiến: | Quý IV/2024 |
VỊ TRÍ DỰ ÁN MOONLIGHT GARDEN THỦ ĐỨC
Vị trí Dự án công trình Căn nhà Moonlight Garden Thủ Đức tọa lạc ngã 4 Bình Thái, phường Trường Thọ, quận Thủ Đức, TP. HCM. Ngay nhà ga Metro Bến Thành Suối Tiên Số 10 Bình Thái, cơ hội cầu Thành phố mang tên Bác 4Km sẽ hiện tại hữu, thuận tiện mang đến việc dịch chuyển.
+ Đi sân bay Tân Sơn Nhất theo đường số 3 sẽ mở rộng lớn ra đường lớn Phạm Văn Đồng.
+ Đi đường cao tốc Long Thành Dầu Giây theo đường Vành Đai 2.
TIỆN ÍCH DỰ ÁN MOONLIGHT GARDEN THỦ ĐỨC
Tiện ích trung tâm Dự án công trình Moonlight Garden Thủ Đức:
- TTTM, trường mẫu giáo, shophouse, spa làm đẹp, thể hình, hồ nước bơi lội.
- Hồ nước bơi lội tràn văn minh ở ngay tầng 4 dự án công trình.
- Khu dã ngoại công viên xanh mát xung quanh trung tâm căn nhà, phòng tập thể hình, spa làm đẹp.
- Hòa cùng tự nhiên – thăng bằng nhịp sống với khu dã ngoại công viên rộng lớn rộng 1000m²chuẩn Singapore.
- Một thiên nhiên văn minh với hồ nước bơi lội, trung tâm vui chơi trẻ nhỏ, siêu thị, thể hình, spa làm đẹp, được bao quanh bởi thị trường vào lành và sắc màu sống động của cỏ cây hoa lá tiếp tục đáp ứng nhu cầu yêu cầu sống số 1 mang đến nhiều người dân.
TIỆN ÍCH NGOẠI KHU DỰ ÁN MOONLIGHT GARDEN THỦ ĐỨC
Tiện ích nước ngoài trung tâm Dự án công trình Moonlight Garden Thủ Đức với Ga Metro số 10, Coop Mart, cơ sở y tế Quân dân Y Miền Đông, Vincom Thủ Đức, Suối Tiên, Làng Đại Học Thủ Đức, siêu thị Metro, Parkson Cantavil, trường British International,…
- 01 phút: Ngã tư Bình Thái (Ga số 10 tuyến Metro Bến Thành Suối Tiên).
- 05 phút: Coopmart Thủ Đức.
- 06 phút: Khám đa khoa Quân dân Y Miền Đông.
- 08 phút: Vincom Thủ Đức.
- 09 phút: Khu dã ngoại công viên thư giãn Suối Tiên.
- 10 phút: Làng Đại Học Thủ Đức.
- 10 phút: Siêu thị Metro An Phú.
- 10 phút: Parkson Cantavil.
- 13 phút: Trường British International.
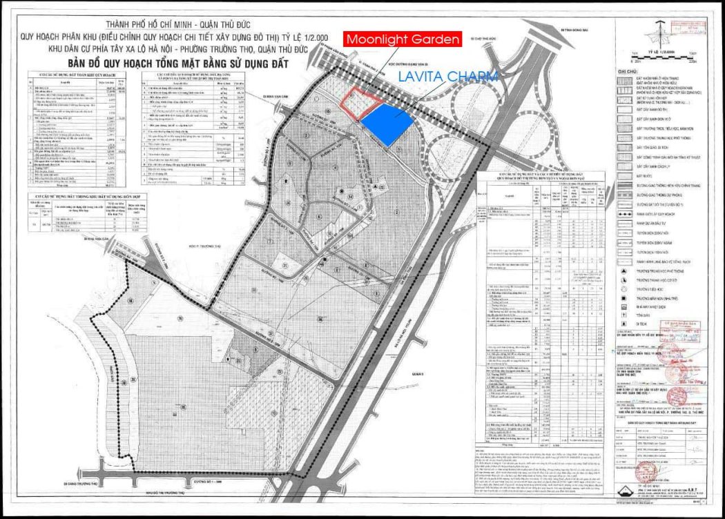
MẶT BẰNG DỰ ÁN CĂN HỘ MOONLIGHT GARDEN THỦ ĐỨC
Mặt phẳng Tổng thể Dự án công trình Moonlight Garden Thủ Đức với thiết lập văn minh vào từng liên quan: Một trung tâm vườn tươi sáng tiếp tục bừng lên sức sống mang đến những khối kiến trúc quen thuộc. Trên Moonlight Garden từng căn nhà đều được thiết lập văn minh nhằm tận dụng tối đa tối nhiều diện tích S sử dụng mang đến tất cả vận hành của nhiều thành viên vào mái ấm gia đình. Ngoài ra, từng căn nhà đều xuất hiện những tầm thông thoáng nhằm quý vị tạo nên nên những màu xanh tươi mới mang đến mái ấm gia đình.
THIẾT KẾ CĂN HỘ MOONLIGHT GARDEN






TIẾN ĐỘ THI CÔNG DỰ ÁN MOONLIGHT GARDEN THỦ ĐỨC



GIÁ BÁN CĂN HỘ MOONLIGHT GARDEN THỦ ĐỨC
- Ký hợp đồng mùa mới nhất chỉ 15%, sót lại thanh toán theo tiến độ.
- Chiết khấu từ 3 – 18%.
- Ngân hàng nhà nước tương hỗ vay 70% vào 15 – 10 năm.











