Sunneva Island là dự án Khu đô thị Hoà Quý nằm trong khu đất vàng với mật độ đậm đặc các dự án khu đô thị tại phường Hòa Quý, TP. Đà Nẵng. Dự án Sunneva Island Đà Nẵng vẫn sở hữu ưu thế riêng nhờ quỹ đất rộng hơn 41,5ha, quy hoạch bài bản và hệ thống tiện ích đẳng cấp. Dự án hiện đã hoàn thiện tuy nhiên vẫn duy trì sức hút lớn với khách hàng đầu tư hoặc sở hữu an cư.
TỔNG QUAN DỰ ÁN KHU ĐÔ THỊ SUNNEVA ISLAND ĐÀ NẴNG
|
Tên thương mại |
|
|
Vị trí |
• Đường Võ Chí Công, Phường Hòa Quý, quận Ngũ Hành Sơn, Đà Nẵng |
|
Chủ đầu tư |
|
|
Thiết kế |
• Archipel |
|
Diện tích |
• 41,5ha |
|
Mật độ xây dựng |
• 45% |
|
Quy mô |
• Khu đô thị kiểu mẫu 41,5ha tích hợp hệ thống tiện ích toàn diện, đồng bộ. |
|
Tiện ích |
• Trung tâm thương mại, bệnh viện, trường học, trường mần non, hồ bơi, hồ điều hòa trung tâm, khu thể thao đa năng, quảng trường nhạc nước, công viên, phố đi bộ ven sông,… |
|
Loại hình sản phẩm |
• Nhà phố, biệt thự |
|
Khời công/dự kiến bàn giao |
• Đã hoàn thiện |
|
Giá bán dự kiến |
• Từ 29 triệu/m2 |
|
Pháp lý |
• Sở hữu lâu dài |
VỊ TRÍ DỰ ÁN KHU ĐÔ THỊ SUNNEVA ISLAND ĐÀ NẴNG
Vị trí Dự án Sunneva Island sở hữu vị thế ngay trên đường Võ Chí Công, phường Hòa Quý, quận Ngũ Hành Sơn, TP. Đà Nẵng. Địa thế dự án được đánh giá cao bởi hai mặt phía Đông và Bắc giáp sông Cổ Cò, Vĩnh Điện và Sông Hàn. Đồng thời, hai mặt tiền còn lại giáp với trục đường Võ Chí Công – Nguyễn Tri Phương (phía Tây) và mặt còn lại giáp khu đô thị sầm uất.
Ngoài ra, từ dự án đối diện qua bên kia sông là sân Golf rộng 330ha và dễ dàng kết nối với trung tâm thành phố Đà Nẵng và các tiện ích công tuyến đầu. Đồng thời dự án cũng thuận tiện đến các địa điểm du lịch nổi tiếng như phố cổ Hội An, danh thắng Ngũ Hành Sơn,..
HẠ TẦNG KHU VỰC SUNNEVA ISLAND ĐÀ NẴNG
Quận Ngũ Hành Sơn nói chung và phường Hòa Quý (Khu đô thị Hoà Quý) nói riêng có vị thế chiến lược trong việc phát triển không gian đô thị của toàn thành phố Đà Nẵng theo mục tiêu vươn tầm đẳng cấp như các trung tâm đô thị – du lịch tại Châu Á.
Nổi bật tại Hòa Quý có bãi biển Non Nước, một trong mười điểm du lịch đẹp nhất hành tinh trải dài 18km với các thương hiệu khách sạn 5 sao, nghỉ dưỡng danh tiếng trên khắp thế giới như: Sandy Beach Resort, Hyatt Regency Danang,..
Ngoài ra, Hòa Quý còn nổi danh với các địa danh văn hóa, lịch sử nổi tiếng như Công viên Văn hóa lịch sử Ngũ Hành Sơn rộng 139ha, vườn bách thảo, tuyến du lịch đường sông nối liền Hòa Quý với Phố cổ Hội An,…
Với nhiều thế mạnh về du lịch, Hòa Quý được kỳ vọng trở thành trung tâm du lịch phía Đông Nam của TP. Đà Nẵng vào giai đoạn 2021-2025.
TIỆN ÍCH DỰ ÁN KHU ĐÔ THỊ SUNNEVA ISLAND ĐÀ NẴNG
Khu đô thị Sunneva Island là dự án an cư kiểu mẫu, sở hữu nhiều tiện ích quy mô bề thế có một không hai tại khu vực. Tại trung tâm dự án là không gian công viên cây xanh, hồ điều hòa và quảng trường nhạc nước rộng 37.500 m2. Nhờ công trình này, nhiệt độ tại Khu đô thị Hoà Quý luôn thấp hơn bên ngoài từ vài độ C và sở hữu chất lượng không khí mát mẻ quanh năm.
Song song đó, nội khu Khu đô thị Sunneva Island tụ họp đầy đủ mọi tiện ích sinh hoạt mà cư dân cần. Từ trung tâm thương mại mua sắm, bệnh viện, trường học các cấp, khu tập luyện thể thao đa năng,…với chất lượng đồng bộ, cao cấp.
Đặc biệt, hệ thống giao thông nội khu tại Dự án Sunneva Island Đà Nẵng được quy hoạch khoa học, mạch lạc. Các tuyến đường rộng từ 12,5-27,5m cùng 10 điểm nút giao thông, rất thuận tiện di chuyển kể cả bằng phương tiện ô tô.
TIỆN ÍCH NGOẠI KHU DỰ ÁN SUNNEVA ISLAND ĐÀ NẴNG
Tất cả các tiện ích nổi bật, tầm vóc biểu tượng quan trọng của Đà Nẵng đều thuận tiện kết nối với Sunneva Island Đà Nẵng. Theo đó, từ dự án chỉ mất dưới 20 phút để kết nối với UBND thành phố, sân bay Quốc tế Đà Nẵng, trung tâm Hội chợ Triễn lãm Đà Nẵng, siêu thị Metro, bệnh viện Đà Nẵng, Làng Đại học, Núi Ngũ Hành Sơn, ga Đà Nẵng, chuỗi khu du lịch – khách sạn nghỉ dưỡng tại bãi biển Non Nước, sân golf,..
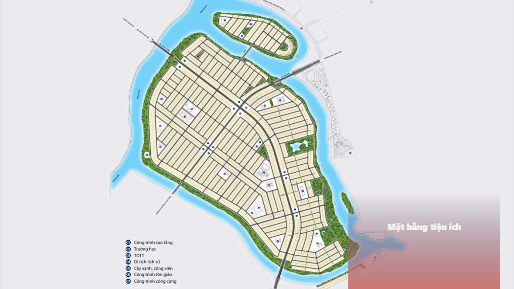
MẶT BẰNG DỰ ÁN KHU ĐÔ THỊ SUNNEVA ISLAND ĐÀ NẴNG
Mặt bằng tổng thể Dự án Sunneva Island Đà Nẵng có diện tích thoáng rộng với 415.629 m², mật độ xây dựng đạt 45%. Trong đó, 129.206m2 (31%) được dùng phát triển hệ thống giao thông, 37.500 m2 (9%) dành cho công viên trung tâm với hô điều hòa và quảng trường, 40.000m2 (9,6%) dùng phát triển cây xanh ven sông và hơn 27.488m2 được dùng cho các tiện ích dân sinh như TTTM, bệnh viện, trường học, khu thể thao,…
Các đất nền đất ở xây dựng nhà phố hoặc biệt thự tại Sunneva Island Đà Nẵng có diện tích từ 100-150m2.
TIẾN ĐỘ THI CÔNG DỰ ÁN SUNNEVA ISLAND ĐÀ NẴNG


LÝ DO MUA SUNNEVA ISLAND ĐÀ NẴNG
+ Vị trí hai mặt giáp sông, hai mặt giáp đường lộ và khu dân cư sầm uất.
+ Không gian xanh và hồ nước chiếm ưu thế, đảm bảo không gian sống xanh, sạch.
+ Khu đô thị kiểu mẫu, quy hoạch khoa học, tiện ích phong phú, đồng bộ.
+ Chủ đầu tư uy tín, pháp lý rõ ràng, minh bạch.
+ Thừa hưởng nhiều chuỗi tiện ích nhờ nằm kề nhiều khu dân cư bề thế và đại dự án của chủ đầu tư Tập đoàn Sungroup.
CHỦ ĐẦU TƯ SUNNEVA ISLAND ĐÀ NẴNG
Chủ đầu tư Công ty CP Đầu tư tài chính bảo hiểm Dầu khí (PVIF) được thành lập từ ngày tháng 11/2007 và hoạt động chính trong lĩnh vực Đầu tư tài chính và Bất động sản.
Trải qua gần 15 năm hình thành và vươn mình phát triển không ngừng, chủ đầu tư PVIF hiện là một trong những nhà đầu tư bất động sản chuyên nghiệp hàng đầu Việt Nam.





















