Dự án Golden Hills Đà Nẵng là khu biệt thự cao cấp, khu đô thị sinh thái, khu thể dục thể thao, khu vui chơi giải trí và trung tâm thương mại được phát triển trên quy mô diện tích 400 ha, tọa lạc đắc địa nằm trên cung đường biển xanh tuyệt đẹp Nguyễn Tất Thành, thuộc phường Hòa Hiệp Nam – Hòa Hiệp Bắc, quận Liên Chiểu ,TP Đà Nẵng.
Khu đô thị sinh thái Golden Hills sở hữu những lợi thế nổi trội thêm vào đó là mức giá cạnh tranh hợp lý, pháp lý rõ ràng minh bạch, sản phẩm đa dạng sẽ mang đến sự lựa chọn hoàn hảo về nơi an cư lý tưởng, cơ hội đầu tư sinh lời cao cho quý khách hàng và các nhà kinh doanh.
>> Him Lam Green Park – Cơ hội đầu tư đất nền Bắc Ninh: Mở bán đất nền liền kề biệt thư dự án khu đô thị Him Lam Đại Phúc Bắc Ninh (). Dự án tọa lạc Phường Đại Phúc, Thành Phố Bắc Ninh, Tỉnh Bắc Ninh. Tổng diện tích dự án 26,8Ha vởi 666 căn liền kề, 13 biệt thự và 1.926 căn hộ chung cư. Diện tích: Liền kề từ 75m2 –136m2 và Biệt thự 304,8m2 – 459,8m2 và Nhà ở xã hội 40m2 – 70m2.
TỔNG QUAN DỰ ÁN GOLDEN HILLS ĐÀ NẴNG
- Tên dự án: Golden Hills
- Loại hình phát triển: Khu biệt thự cao cấp, khu đô thị sinh thái, khu thể dục thể thao, khu vui chơi giải trí và trung tâm thương mại
- Vị trí dự án: Đường Nguyễn Tất Thành, Phường Hòa Hiệp Nam – Hòa Hiệp Bắc, Quận Liên Chiểu ,TP Đà Nẵng
- Quy mô khu dô thị sinh thái Golden Hills:
- Tổng diện tích 400 ha
- Mật độ xây dựng: 42,1%
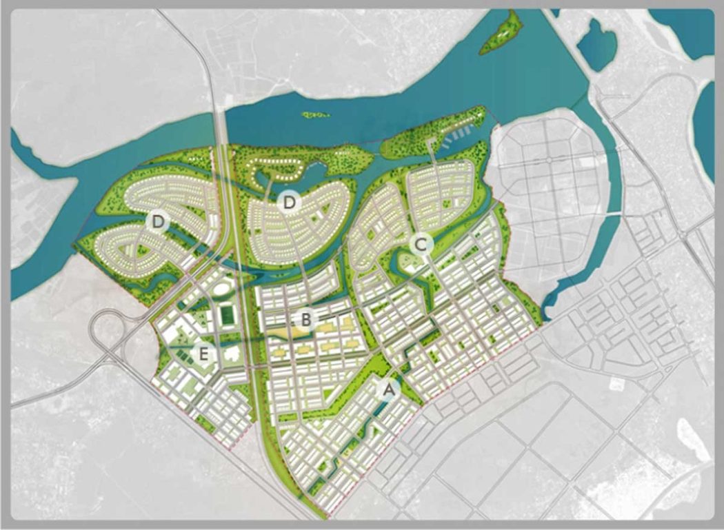
- Dự án gồm 5 khu chức năng chính:
- Khu A: 86 ha gồm biệt thự, nhà liền kề, công viên cây xanh
- Khu B: 45 ha gồm biệt thự, nhà liền kề, văn phòng, quảng trường, viện bảo tàng, bệnh viện, siêu thị
- Khu C: 76 ha gồm nhà liền kề, biệt thự
- Khu D: 122 ha gồm Villa sinh thái, Bến du thuyền sang trọng
- Khu E: 45 ha gồm khu vui chơi giải trí, khu thể dục thể thao
- Khu Đảo: 2 ha với dinh thự biệt lập đặc biệt
VỊ TRÍ DỰ ÁN GOLDEN HILLS ĐÀ NẴNG
Dự án Golden Hills sở hữu vị trí chiến lược, nằm ở khu vực cửa ngõ phía tây bắc của thành phố Đà Nẵng, mặt tiền đường Nguyễn Tất Thành, vừa gần biển vừa gần sông và kết nối nhiều tuyến đường huyết mạch. Đây là vị trí trọng tâm, có hệ thống hạ tầng giao thông và hạ tầng xã hội phát triển đồng bộ. Do đó tiềm năng gia tăng giá trị của Golden Hills Đà Nẵng là rất cao.
Đáng chú ý hơn, từ Golden Hills Liên Chiểu chỉ mất khoảng 10 phút đi xe là tới trung tâm thành phố Đà Nẵng. Không chỉ vậy, dự án chỉ cách bãi biển khoảng 5 phút đi bộ nên cũng sẽ gần gũi với hàng loạt những tiện ích du lịch thú vị, mà bất cứ ai đến Đà Nẵng cũng muốn được trải nghiệm.
Sỡ dĩ nói khu vực Tây Bắc đang thu hút nhà đầu tư, vì hàng loạt dự án động lực, mang tính kết nối liên vùng được thành phố chú trọng đầu tư tại đây, như: dự án nâng cấp mở rộng đường Nguyễn Tất Thành nối dài, khu Công nghệ cao, Khu Công nghệ thông tin, xây dựng Cảng Liên Chiểu, Ga đường sắt mới…
Khi các công trình này đi vào khai thác, hoạt động diện mạo đô thị mà Golden Hills Đà Nẵng tọa lạc sẽ thay đổi nhanh chóng, tạo tiềm năng phát triển mọi ngành nghề đặc biệt là tạo lên sức hấp dẫn cho thị trường bất động sản nơi đây.
TẬN HƯỞNG NHỮNG TIỆN NGHI CAO CẤP TẠI GOLDEN HILLS ĐÀ NẴNG
Dự án Golden Hills mang đến những trải nghiệm sống thú vị, không chỉ đơn thuần là nơi cư trú mà Golden Hills Liên Chiểu mang đến không gian nghỉ dưỡng cao cấp ngay tại ngôi nhà của bạn.
Sự xuất hiện hàng loạt các tổ hợp tiện ích đẳng cấp đạt tiêu chuẩn quốc tế sẽ đáng ứng mọi nhu cầu từ cơ bản đến xa xỉ nhất của cộng đồng dân cư trong Khu dô thị sinh thái Golden Hills.
Các tiện ích Dự án Golden Hills Đà Nẵng tiêu biểu như:
- Trung tâm thương mại cao cấp với chuỗi cửa hàng danh, thương hiệu thời trang nổi tiếng sẽ làm thỏa mãn nhu cầu mua sắm của cư dân.
- Hệ thống siêu thị, nhà hàng cung cấp thực phẩm tươi ngon, những bữa ăn dinh dưỡng trong không gian sang trọng đẳng cấp.
- Khu vui chơi giải trí dành cho người lớn, trẻ em ở trong nhà và ngoài trời.
– Đặc biệt, khu dô thị sinh thái Golden Hills có công viên ven sông giúp tái tạo, bảo vệ và củng cố các hệ động vật tự nhiên tồn tại dọc chiều dài 2,7km của dòng sông. Không gian mở này được kết nối với mạng lưới các công viên lớn hơn dọc theo đường xanh, được sử dụng như những không gian nghỉ ngơi thư giãn.
– Hệ thống bệnh viện, trường học nội khu.
– Khu thể thao đa năng gồm sân tập ngoài trời, phòng tập gym trong nhà và các dịch vụ spa làm đẹp.
– Dự án Golden Hills Đà Nẵng được xây dựng và vận hành rất nghiêm ngặt với camera giám sát 24/23, thẻ từ ra vào, chốt canh bảo vệ, đảm bảo an toàn tuyệt đối giúp cư dân an tâm sinh sống và làm việc tại đây.
MẶT BẰNG THIẾT KẾ DỰ ÁN GOLDEN HILLS ĐÀ NẴNG
Dự án Golden Hills Đà Nẵng được quy hoạch với tồng diện tích 400 ha chia làm 6 phân khu, mỗi phân khu có chắc năng riêng và sở hữu những sản phẩm bất động sản riêng.
Giai đoạn 1: Triển khai khu A với diện tích 86 ha gồm nhà liền kề, biệt thự, nhà trẻ, bệnh viện, trường học quốc tế…
Giai đoạn 2: Triển khai khu B với diện tích 45 ha gồm nhà liền kề, biệt thự, khách sạn, văn phòng, bệnh viện, siêu thị, quảng trường…
Giai đoạn 3: Triển khai khu C với diện tích 76 ha gồm nhà liền kề, biệt thự cao cấp.
Giai đoạn 4: Triển khai khu E với diện tích 45 ha gồm nhà liền kề, khu thể thao.
Giai đoạn 5: Triển khai khu D với diện tích 122 ha gồm nhà liền kề, biệt thự cao cấp và khu đảo với diện tích 2 ha
Dưới bàn tay nghệ thuật của SOM – thương hiệu danh tiếng, từng quy hoạch thành công tòa nhà cao nhất thế giới tại thành phố Dubai tráng lệ và thiết kế nên dự án vàng Phú Mỹ Hưng tại Việt Nam, Golden Hills Liên Chiểu làm say đắm lòng người khi tận dụng tối đa dòng chảy tự nhiên của kênh rạch kết hợp xây dựng các mảng xanh tạo lên môi trường sống lý tưởng, bầu không khí trong lành.
Hơn thế nữa, khu dô thị sinh thái Golden Hills rất chú trọng vào kết cấu phát triển dự án bền vững, có thể tránh ngập lụt từ thượng nguồn hoặc ảnh hưởng của thủy triều, đảm bảo sự chắc chắn cho các công trình trên mặt đất.
TIẾN ĐỘ THI CÔNG DỰ ÁN GOLDEN HILLS ĐÀ NẴNG



















