Dự án Khu đô thị Đông Bình Dương sở hữu vị trí đắc địa, hệ thống tiện ích đồng bộ mang đến cho khách hàng hàng loạt sự tiện nghi trong sinh sống và làm việc. Với quy mô 126 ha, dự án Đông Bình Dương cung ứng 6.090 nền đất diện tích trung bình từ 80 – 200m2, chia làm 3 giai đoạn triển khai cơ sở hạ tầng. Tọa lạc ngay mặt tiền đường Nguyễn Thị Minh Khai, phường Tân Bình, Dĩ An. Nằm trong vùng đang phát triển không chỉ về hạ tầng mà còn đang đẩy mạnh về giao thông khiến cho đất nền Đông Bình Dương trở thành dự án đáng để đầu tư.
TỔNG QUAN DỰ ÁN KHU ĐÔ THỊ ĐÔNG BÌNH DƯƠNG
- Tên dự án: Khu đô thị Đông Bình Dương
- Địa chỉ: Đường Nguyễn Thị Minh Khai, Phường Tân Bình, Dĩ An, Bình Dương
- Quy mô dự án: 126 ha
- Diện tích đa dạng: từ 80 m2 – 200 m2
- Quy mô 6.090 nền đất, chia làm 3 giai đoạn triển khai cơ sở hạ tầng
- Lô thường: 5×16, 5×18, 5×20, 5×25, 5×30
- Lô góc: 6×16, 6×18, 6×20, 6×25, 6×30
- Hạ tầng: đang hoàn thiện, đường nội bộ: 14m-36m
- Xây dựng tự do
- Pháp lý: Sổ hồng riêng, thanh toán linh hoạt nhiều đợt không lãi xuất
- Ngân hàng hỗ trợ 50% giá trị lô đất
VỊ TRÍ DỰ ÁN KHU ĐÔ THỊ ĐÔNG BÌNH DƯƠNG
Khu đô thị Đông Bình Dương toạ lạc tại Phường Tân Bình ngay giao điểm với Phường Tân Hạnh, khu vực sầm uất nhất khu vực, tập trung đầy đủ tiện ích, thuận lợi kinh doanh mua bán và an cư lập nghiệp.
Với vị trí rất đẹp nằm trên trục đường chính Nguyễn Thị Minh Khai là đầu nối giao thông quan trọn giữa hai TP Bình Dương và TP Biên Hòa – tỉnh Đồng Nai, dự án Đông Bình Dương đang trở thành một khu đô thị thương mại lớn nhất Dĩ An, là lựa chọn hàng đầu của các cư dân nhập cư đã sống và làm việc tại Phường Tân Bình , TX. Dĩ An , Tỉnh Bình Dương và các khu vực lân cận…
Vị trí tiếp giáp của dự án đất nền Đông Bình Dương như sau:
- Phía tây nam giáp đất dân và một phần suối Năm Thuận
- Phía tây bắc giáp chi nhánh suối Năm Thuận và một phần đất dân
- Phí đông bắc giáp rạch ông Tiếp
- Phía đông nam giáp rạch ông Tiếp và đường Nguyễn Thị Minh Khai
Hơn nữa, Khu đô thị Đông Bình Dương có địa thế, nằm gần các tuyến đường huyết mạch tạo nên sự nổi trội về giao thông và khả năng liên kết như:
- Tuyến Mỹ Phước – Tân Vạn (liên kết toàn tỉnh Bình Dương với Đồng Nai và Bà Rịa Vũng Tàu)
- Tuyến Quốc lộ 1K nối tiếp đường Phạm Văn Đồng vào trung tâm TP HCM và kết nối với TP Biên Hoàn
- Các tuyến đường Tỉnh lộ,…
Theo thông tin cập nhật từ google map, khoảng cách từ dự án Đông Bình Dương đến:
- Chợ Bình Trị 900m
- Chợ Chiêu Liêu 2km
- KCN VSIP 2km
- Chợ An Phú 3km
- KCN Tân Đông Hiệp B 4km
- KCN Việt Hương 5km
- Chợ Dĩ An 5km
- EAON Bình Dương 6km
- KCN Bình An 7km
- BV Đa Khoa Quốc Tế Miền Đông 7km
- Chợ Thủ Đức 8km
- Bệnh Viện Quốc Tế Hạnh Phúc 8km
- Làng Đại Học Quốc Gia TPHCM 8km
- Chợ Thủ Dầu Một 10km
- Chợ Bến Thành 16km
- Sân bay Tân Sơn Nhất 20km
Lợi thế về vị trí khu đô thị Đông Bình Dương chính là tọa lạc tại trung tâm thị xã Dĩ An, nên chỉ mất 15 phút cư dân di chuyển nhanh chóng đến các khu dân cư lân cận như quận Thủ Đức, TP Biên Hòa, TP THủ Dầu Một, TP Mới Bình Dương.
Đáng chú ý hơn, đất nền Đông Bình Dương thừa hưởng mạng lưới cơ sở hạ tầng giao thông hoàn thiện với các công trình lớn như:
- Đường Mỹ Phước – Tân Vạnđược kỳ vọng đem lại nhiều thay đổi tích cực cho Tỉnh Bình Dương. Hiện nay đã có xe lưu thông từ đầu đường Thành Phố Mới đến Tân Bình và khi toàn tuyến được đưa vào sử dụng sẽ rút ngắn thời gian di chuyển từ Bình Dương đi Thành phố chỉ còn 30 phút và giảm chi phí vận chuyển hàng hóa 30% so với các tuyến đường hiện hữu.
- Tỉnh Bình Dương đang xúc tiến đầu tư tuyến metro nối trung tâm thành phố mới Bình Dương với tuyến Bến Thành – Suối Tiên, đồng thời xây dựng 7 tuyến đường sắt đô thị cùng mạng lưới xe bus kết nối nhanh trung tâm thành phố mới Bình Dương -TP.TDM – Thuận An – Dĩ An.
TIỆN ÍCH DỰ ÁN KHU ĐÔ THỊ ĐÔNG BÌNH DƯƠNG
Điểm nhấn của Khu đô thị Đông Bình Dương có địa hình sinh thái tự nhiên bao quanh hồ. Với cảnh quan thiên nhiên xuyên suốt trong Khu Đô Thị nhằm tạo một môi trường sống trong lành, thoáng mát.
Dự án Đông Bình Dương còn tạo nên không giang sống sinh thái – thương mại dịch vụ hiện đại của Thị Xã Dĩ An, đáp ứng một cách đầy đủ những nhu cầu thiết cho người dân sinh sống và làm việc trong khu đô thị và những KCN lân cận. Các tiện ích tiêu biểu như:
- Trường học các cấp
- Ngân hàng
- Nhà hàng
- Khách sạn
- Khu văn phòng
- Trung tâm y tế
- Bưu điện
- Khu thể dục thể thao
- Công viên cây xanh
- Chợ truyền thống
- Phố thương mại
- Siêu thị đa năng
- Khu vui chơi giải trí
Điểm khác biệt chính của đất nền Đông Bình Dương là quy hoạch với cảnh quan sinh thái đa dạng với kiến trúc hiện đại phù hợp với địa hình tự nhiên của đất, gia tăng tính thẩm mỹ và đảm bảo sự bền vững phát chuyển lâu dài
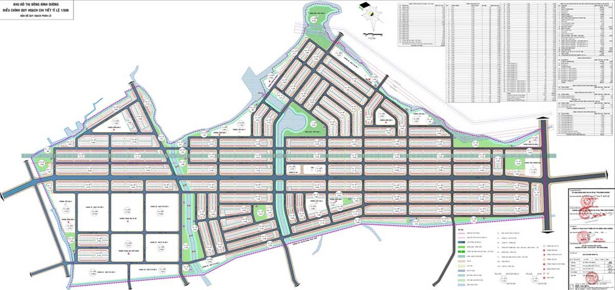
MẶT BẰNG THIẾT KẾ KHU ĐÔ THỊ ĐÔNG BÌNH DƯƠNG
Khu đô thị Đông Bình Dương được quy hoạch tổng diện tích 126,7ha. Với chỉ tiêu 4 người 1 hộ, dự án sẽ bố trị được khoảng 5.759 – 7.918 hộ.
- Nhà chung cư chiếm 2.370m2, mật độ xây dựng 65,65%, từng cao 06 từng, tổng số căn 63 căn.
- Hạng mục đất tái định cư chiếm 44.814m2, từng cao 01-03 từng, tổng số căn 420 căn.
- Đất xã hội chiếm 92.858m2, mật độ xây dựng 65% cao 05 từng, khoảng 1.421 căn.
- Đất thương mại dịch vụ diện tích 8.866m2.
- Đất giáo dục diện tích 80.787m2, gồm 05 trường mầm non, 04 trường tiểu học, 01 trường THCS, 01 trường THPT.
- Đất y tế diện tích 5.541m2, gồm 2 phòng khám đa khoa.
- Đất cây xanh thể dục thể thao diện tích 51.008m2.
Dự án Đông Bình Dương sẽ đưa ra thị trường nhiều hạng mục sản phẩm đa dạng cả về kích thước, thiết kế lẫn giá cả. Đây sẽ là cơ hội lớn cho các nhà đầu tư. Với quy chế xây dựng linh hoạt (không áp dụng nhà mẫu), từ 1 đến 2,5 tầng gia chủ có thể yên tâm xây dựng Nhà theo điều kiện kinh tế.
Cơ sở hạ tầng của dự án khá hoàn thiện với đường chính 24m, lòng đường 14m vỉa hè mỏi bên 5m. Đường phụ 15m lòng đường 7m vỉa hè mỏi bên 4m kết nối các trục đường chính Nguyễn Thị Minh Khai – Nguyễn Thị Tươi và Tân Ba làm cho khu đô thị thông thoáng và thuận tiện cho việc đi lại





