EximLand là một trong những công ty kinh doanh bất động sản lớn ở Việt Nam. EximLand được thành lập ngày 11/10/2007, và thay đổi lần thứ 7 ngày 18/05/2015. Vốn điều lệ: 453.440.000.000 VNĐ. Tính đến thời điểm tháng 09/2018, sau cuộc thay đổi nhân sự cực kỳ lớn thì vốn điều lệ của công ty hiện tại là 417.840.000.000 VNĐ với vốn điều lệ là 417,8 tỷ đồng. Chi tiết hơn về chủ đầu tư này, hãy cùng theo dõi bài viết dưới đây, chúng tôi đã tổng hợp thông tin đầy đủ nhất về quá trình hình hình và các dự án tiêu biểu của Công ty cổ phần Bất động sản E Xim.
QUÁ TRÌNH HÌNH THÀNH VÀ PHÁT TRIỂN CỦA EXIMLAND
– EximLand được thành lập trên cơ sở hợp tác của các cổ đông sáng lập gồm:
- Công ty CP Chứng khoán Rồng Việt
- Tổng Công ty Du lịch Sài Gòn
- Công ty CP hợp tác kinh tế và xuất nhập khẩu Savimex
- Công ty CP Kiến trúc xây dựng Nhà Vui
- Ngân hàng Thương mại CP Xuất nhập khẩu Việt Nam (EXIMBANK)


Ngoài ra, Eximland còn có sự tham gia góp vốn của một số doanh nghiệp lớn như: Tổng công ty TM Sài Gòn (SaTra), Công ty TNHH Quản lý Bất động sản Hoàng Phúc.
– 11/10/2007: Exim Land được cấp GCNĐKKD
– 30/12/2009: Công ty Cổ phần Bất động sản Đất Thành sát nhập vào Công ty Cổ phần Bất động sản E Xim.
– 22/06/2010: Exim Land được UBCKNN chấp nhận là Công ty đại chúng.
– 12/2016, Công ty cổ phần Bất động sản E Xim đã tiến hành đăng ký cổ phiếu Eximland lần đầu trên trung tâm lưu ý chứng khoán Việt Nam, đồng thời niêm yết cổ phiếu Eximland trên sàn giao dịch Upcom thuộc Sở giao dịch chứng khoán Hà Nội.
Lĩnh vực hoạt động chính của Exim Land:
- Kinh doanh bất động sản
- Tư vấn đầu tư – đấu thầu
- Quản lý dự án
- Lập dự án đầu tư.
- Thi công xây dựng công trình dân dụng, công nghiệp, giao thông, thủy lợi.
CÁC DỰ ÁN TIÊU BIỂU CÔNG TY CỔ PHẦN BẤT ĐỘNG SẢN E XIM – EXIMLAND
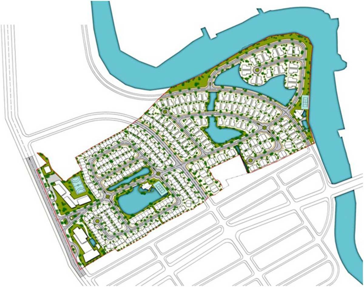
Dự án Exim Garden
- Vị trí dự án: Đường Bưng Ông Thoàn, ấp Tân Điền A, phường Phú Hữu, Quận 9, Tp.HCM.
- Chủ đầu tư dự án: Công ty Cổ phần Bất động sản E Xim (Eximland)
- Tổng vốn đầu tư dự án: 611 tỷ đồng
- Tổng diện tích dự án: 18ha
- Diện tích đất dành cho biệt thự, căn hộ cao cấp: 76.883m2
- Diện tích đất thương mại, công trình công cộng: 30.753m2
- Diện tích đất công viên cây xanh, thể dục thể thao: 29.045m2
- Diện tích đất dành cho giao thông nội bộ: 34.170m2
- Loại hình đầu tư và phát triển: Biệt thự, Căn hộ cao cấp
Dự án Exim Garden nằm trong tổng thể Khu dân cư 272 ha dọc đường Bưng Ông Thoàn, phường Phú Hữu, quận 9, Tp. Hồ Chí Minh. Dự án được quy hoạch và phát triển là khu dân cư cao cấp với hệ thống cơ sở hạ tầng đồng bộ.
Được quy hoạch và phát triển trên khu đất có diện tích là hơn 18 ha, khu dân cư Exim Garden bao gồm các khu biệt thự sang trọng đẳng cấp, các cao ốc căn hộ cao cấp, cùng với các dịch vụ tiện tích nội khu như: trung tâm thương mại, công viên cây xanh, bệnh viện, trường học, trung tâm thể dục thể thao, khu vui chơi giải trí,…
Đặc biệt, khu dân cư Exim Garden còn có các dịch vụ vui chơi mới lạ dành cho những người yêu thích các môn thể thao dưới nước tại bến du như: Lướt ván, đua thuyền, nhảy cầu, du ngoạn trên sông Sài Gòn,…
Với lợi thế 2 mặt giáp sông cùng với hệ thống kênh rạch len lõi, Exim Garden được bố trí cảnh quang hợp lý, đồng thời khai thác các mảng xanh, tiểu cảnh mà thiên nhiên ban tặng mang đến cho cộng đồng dân cư không gian khoáng đãng và môi trường sống gần gũi tự nhiên.
Dự án Exim Pearl Tower
Dự án khu căn hộ Exim Pearl Tower được Exim Land tổ chức lễ động thổ khởi công dự án vào sáng ngày 20/03/2016.
Thông tin nhanh về dự án Exim Pearl Tower
- Tên dự án: Exim Pearl Tower
- Tổng diện tích dự án: 4.445 m2
- Vị trí dự án: Đường Lê Văn Lương, huyện Nhà Bè, Tp.Hồ Chí Minh.
- Chủ đầu tư dự án: Công ty Cổ phần Bất động sản E Xim (Eximland)
- Tổng vốn đầu tư dự án: Đang cập nhật
- Loại hình đầu tư và phát triển: Căn hộ, officetel
- Quy mô dự án: 2 block
- Số tầng: 19 tầng bao gồm: 2 tầng hầm gửi xe, 3 tầng thương mại – officetel và 15 tầng căn hộ.
- Số căn hộ: 323 căn
- Diện tích căn hộ: Từ 45 – 83 m2
- Mật độ xây dựng: 40%.
Exim Pearl Tower nằm trên đường Lê Văn Lương, huyện Nhà Bè, Tp. Hồ Chí Minh, dự án nằm gần ngã tư đường Nguyễn Văn Linh, cạnh đường Nguyễn Hữu Thọ, cách khu đô thị Phú Mỹ Hưng chỉ khoảng 5 phút. Từ Exim Pearl Tower, cư dân có thể dễ dàng kết nối đến các địa điểm khác trong thành phố.
Bên trong khu căn hộ Exim Pearl Tower có các tiện ích phục vụ cư dân bao gồm: trung tâm thương mại, trường học, khu ẩm thực, cafe, nhà hàng, công viên cây xanh, phòng gym, sân chơi trẻ em,…
Được xây dựng với quy mô 2 block cao 19 tầng, với 323 căn hộ có diện tích từ 45 – 83 m2, thiết kế hiện đại, Exim Pearl Tower là phân khúc căn hộ giá ưu đãi thích hợp cho các hộ gia đình trẻ.
Dự án TopLife Tower
- Vị trí dự án: Số 376 Điện Biên Phủ, phường 11, Quận 10, Tp. Hồ Chí Minh
- Chủ đầu tư dự án: Công ty Cổ phần Bất động sản E Xim (Eximland)
- Tổng diện tích dự án: 1.109,4m2
- Số block: 1 block
- Số tầng: 16 tầng + 4 tầng hầm
- Số lượng căn hộ: 82 căn
- Diện tích căn hộ: 48,7-78,9 m2
- Loại hình đầu tư và phát triển: Khu phức hợp căn hộ
Dự án khu căn hộ TopLife Tower tọa lạc ngay khu vực trung tâm thành phố tại vị trí 376 Điện Biên Phủ, phường 11, quận10, TP.Hồ Chí Minh, tiếp giáp với quận 1 và quận 3. Từ TopLife Tower thông qua tuyến đường Điện Biên Phủ cư dân có thể di chuyển dễ dàng và nhanh chóng đến các quận lân cân như quận 3, quận 5, quận 1, quận Bình Thạnh,…
Với thiết kế thông minh, khoa học, các căn hộ TopLife Tower đều có thể đón nhận đầy đủ ánh sáng và gió trời tự nhiên. Bên cạnh đó, mỗi tầng được bố trí 2 thang máy với hành lang thông thoáng đảm bảo việc di chuyển thuận lợi và sự yên tĩnh cho các hộ gia đình sinh sống tại đây.


